Описание комплектации: с клавишей смыва Хром
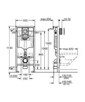
Инсталляция Grohe Solido 38811000 для унитаза с клавишей смыва Хром.Характеристики:Инсталляция: Размеры (ШхВхГ): 500х1130х300 мм. Для монтажа перед стеной или стенной перегородкой. Самонесущая стальная рама с порошковым напылением, подготовлена для облицовки. Фиксированные подключения. Быстрая регулировка по высоте. Крепежный материал. Проверено -TUEV. Два болта-держателя для унитаза. Крепление для керамики. Для подвесных унитазов с опорной поверхностью менее 205 мм. Расстояние между болтами 180/230 мм. Выходной патрубок для унитаза диаметром 90 мм. Регулировка глубины монтажа. Редуктор диаметром 90/110 мм. Впускной и смывной гарнитуры. Смывной бачок:
Заводская настройка 6л и 3л. Пневматический смывной клапан с тремя режимами слива: 2-х объёмный, старт/стоп, или непрерывный. Подключение воды слева, справа и сзади. Арматурная группа I. С изоляцией от конденсационной влаги. Подключение воды DN 15. Для вертикального или горизонтального монтажа. Клавиша смыва:
Цвет: хром. Материал: ABS-пластик. Технология Grohe Long-Life Shine стойкий сверкающий блеск. Вертикальный или горизонтальный монтаж. Технология Grohe Water Saving совершенного потока при уменьшенном расходе воды. Два объема смыва или прерывание смыва старт/стоп. Размеры (ШхВхГ): 156х179х10 мм. Настенный крепеж: Бесступенчатая регулировка глубины от 13 - 20,3 см. Облицовка для одиночного или рельсового монтажа. В комплекте поставки: Инсталляция для подвесного унитаза. Клавиша смыва. Настенный уголок.













































