Описание комплектации: без кнопки смыва
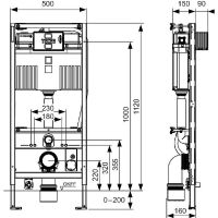
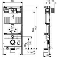
Инсталляция со смывным бачком скрытого монтажа Tece Profil 9300344 для установки унитаза Toto Neorest. Прочная стальная рама.Технические данные: Монтажная рама: Материал: сталь. Высота: 112 см. Регулировка высоты: 20 см. Установочное расстояние для унитаза: 18 или 23 см. Максимальная нагрузка: 400 кг. Бачок: Общий объем: 10 л. Диапазон настройки большого объема смыва: 4,5/6/7,5/9 л. Объем малого смыва: 3 л. В комплекте поставки: монтажная рама; смывной бачок; крепление для унитаза; фановый отвод D 9/10 см; комплект защитных заглушек для патрубков; электрический кабель для подключения автоматического смыва; монтажная коробка для электрических соединений; фитинги и монтажные элементы для подключения воды к унитазу; шаблон для отделки отверстия под панель смыва; инструкция по установке.







































